Menu

Nyt depot på 112 m2 på vej...!

image
19. februar 2025 kl. 12:52

Gennem mange år har der været behov for flere m2 til opbevaring af klubbens materialer, så som sider til overdække, hoppepude, ekstra stole og borde el-ATV med vogn, boldvogne indendørs. 

Og for mange år siden søgte vi i klubben penge til klubhusudvidelse og fik samler 450.000,- til det af Jammerbugt Kommune. Oprindelig skulle opbevaringen være i 2 etager, der hvor der nu er gang ned mod Hal B. Da vi tidligere byggede Stadion lys, overdække, stadion-ur, tribune, tilskuerhegn mm satte vi samtidig klubhusudvidelsen lidt i bero. Dels kunne vi ikke selv overskue flere projekter på samme tid og dels var ombygningen af Jetsmark Idrætscenter ikke designet færdig. Og godt det samme for den løsning vi i dag har fået vedr gangareal og omklædningsrum til Jetsmark Idrætscenter er blevet rigtig godt. Og lige netop der skulle vores oprindelige klubhusudvidelse også være.

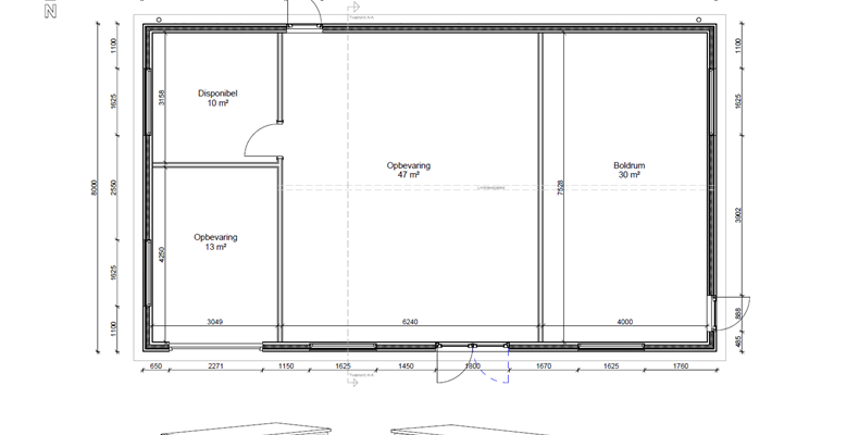
Nu bliver depotets placering i steder mellem stadion-ringen og læbæltet mod nord ved legepladsområdet. Opbevaringsrummet kommer til at indeholde nyt boldrum for U13-Senior, OldBoys og Grandoldboys, så samtidig bliver der mere plads i vores nuværende boldrum. Også noget der gennem længere tid har været behov for.
Opbevaring til El-ATV og vogn, hoppepude, indendørs boldvogne i sommerhalvåret. Vores ekstra grønne stole og klapborde, sidestykkerne til vores overdække på Stadion. M-Stationerne i vinterhalvåret, Soccer-waves i vinterhalvåret mm.
Det bliver også muligt for trænerne at afholde oplæg til kampe ifbm depotet. Noget der også har manglet siden det gamle håndboldlokale blev til materiale rum ifbm hallens ombygning.

Byggetilladelsen kom i hus netop samme dag hvor vi holdt Generalforsamling. Det bliver HC & Engholt Entreprenører der skal lave fundamentet og frivillige skal stå for at bygge depotet. Tak til Daniel Dahl Mathiassen for at tegne vores kommende depot til brug for bla byggeansøgningen. 

Det bliver rigtig spændende og vi vil løbende tage billeder af projektet som det skrider frem. Vi håber at rigtig mange vil afse nogle timer til at hjælpe med at få opført vores kommende depot.

Depotets placering ifht vores overdække er helt perfekt ifht Nørhalne Cup, idet vi fremadrettet kan opbevarer vores varer i depotet, og dermed have minimal afstand mellem varelager og salgssted under Nørhalne Cup. 

Luk